A beautifully presented three bedroom end of terraced family home.
This beautifully presented three bedroom end of terrace home blends character features with modern comfort, creating a warm and inviting place to live.
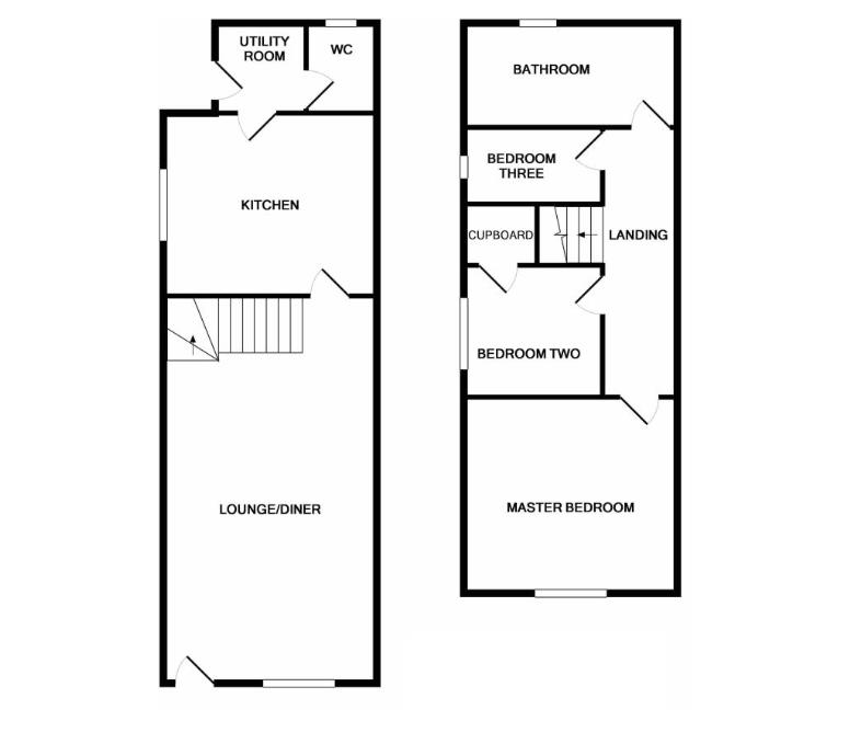
Stepping inside you are greeted with an impressive 25ft lounge/diner, where a dual fuel burner sits within a striking fireplace, adding real charm and atmosphere. The modern fitted kitchen includes an integrated gas hob and electric oven, with a separate utility room and a handy cloakroom/WC completing the ground floor.
Upstairs, the family bathroom offers both a shower cubicle and a full bath. The principal bedroom features a traditional cast iron fireplace, accompanied by a second double bedroom and a third bedroom that works perfectly as a nursery or home office. In the loft there is also an occasional bedroom/playroom or den complete with Velux skylight window and fitted wardrobes.
Outside, the sunny rear garden is mainly lawned, with block paved and concrete patio areas ideal for relaxing or entertaining. A brick outbuilding with power and light provides excellent storage or workshop space. To the side, you’ll find off street parking, while the front garden is laid with block paving and gravel for easy maintenance.
Perfectly positioned for Beverley’s excellent road links, you’ll enjoy quick access to Hull, York, and the wider East Yorkshire network via the A1035, A1079, and A164. Local shops, schools, and amenities are all close by, with the town centre just a short drive or comfortable walk away.
A charming home with space, character and convenience and ready to move straight into.
Get in touch and book your viewing today!
ACCOMMODATION COMPRISES
LOUNGE/DINER (7.61m x 3.64m)
Composite entrance door, carpeted floor, two pendant light fittings, front aspect uPVC double glazed window, side aspect uPVC double glazed window, understairs cupboard and a fireplace with duel fuel burner, tiled hearth, wood surround and mantle piece.
KITCHEN (3.80m x 3.50m)
Wooden door with chrome handles, pendant light fitting, tiled floor, side aspect uPVC double glazed window, rear aspect uPVC double glazed window, a range of wall and base units. Space for a fridge freezer, integrated four ring gas hob and electric oven, drainer sink with mixer tap and an integrated dishwasher.
UTILITY ROOM (2m x 0.80m)
Wooden door with chrome handles, uPVC external door, tiled floor, pendant light fitting, plumbing for a washing machine, wall units and work top.
CLOAK ROOM/WC (1.79m x 0.76m)
Wood door with chrome handles, tiled floor, pendant light fitting, rear aspect uPVC double glazed window, half wood panelled walls, splash back tiles, low flush WC, vanity wash hand basin with mixer tap.
STAIRCASE AND LANDING (5.55m x 0.78m)
Carpeted floor, two pendant light fittings, wooden banister with spindles and loft hatch.
BATHROOM (3.48m x 1.87m)
Wood door with chrome handles, tiled floor, ceiling spotlights, chrome towel radiator, shower cubicle with mixer shower, low flush WC, wash hand basin with mixer tap, bath with splash back tiling.
BEDROOM ONE (2.51m x 1.81m)
Wood door with chrome handles, carpeted floor, pendant light fitting, side aspect uPVC double glazed window.
BEDROOM TWO (2.70m x 2.70m)
Wooden door with chrome handles, carpeted floor, pendant light fitting, side aspect uPVC double glazed window and an airing cupboard.
PRINCIPAL BEDROOM (4m x 3.65m)
Wooden door with chrome handles, pendant light fitting, front aspect uPVC double glazed window, fitted wardrobes and a cast iron fire place with a tiled hearth.
LOFT CONVERSION (3.64m x 3.17m)
Loft hatch, carpeted floor, ceiling spotlights, Velux skylight window, eaves storage and fitted wardrobes.
EXTERIOR
To the front a front a block paved and gravel garden with a dwarf wall. To the rear a lawned garden with a wall and fence surround. A block paved patio area, concrete BBQ area and a brick shed with power and light.
COUNCIL TAX:
We understand the current Council Tax Band to be A
SERVICES :
Mains water, gas, electricity and drainage are connected.
TENURE :
We understand the Tenure of the property to be Freehold.
MORTGAGE CLAUSE :
Staniford Grays provide independent financial advice through Tony Hammond of Hammond Financial. Further details and referrals immediately available through the Beverley Office Tel: (01482) 866304 and [email protected].
YOUR HOME IS AT RISK IF YOU DO NOT KEEP UP REPAYMENTS ON A MORTGAGE OR OTHER LOAN SECURED ON IT.
PROPERTY PARTICULARS DISCLAIMER :
PROPERTY MISDESCRIPTIONS ACT 1991
The Agent has not tested any apparatus, equipment, fixture, fittings or services, and so does not verify they are in working order, fit for their purpose, or within ownership of the sellers, therefore the buyer must assume the information given is incorrect. Neither has the Agent checked the legal documentation to verify legal status of the property or the validity of any guarantee. A buyer must assume the information is incorrect, until it has been verified by their own solicitors."
The measurements supplied are for general guidance, and as such must be considered as incorrect. A buyer is advised to re-check the measurements themselves before committing themselves to any expense."
Nothing concerning the type of construction or the condition of the structure is to be implied from the photograph of the property.
The sales particulars may change in the course of time, and any interested party is advised to make final inspection of the property prior to exchange of contracts.
MISREPRESENTATION ACT 1967
These details are prepared as a general guide only, and should not be relied upon as a basis to enter into a legal contract, or to commit expenditure. An interested party should consult their own surveyor, solicitor or other professionals before committing themselves to any expenditure or other legal commitments.
If any interested party wishes to rely upon any information from the agent, then a request should be made and specific written confirmation can be provided. The Agent will not be responsible for any verbal statement made by any member of staff, as only a specific written confirmation should be relied upon. The Agent will not be responsible for any loss other than when specific written confirmation has been requested.