SPECIFICATION
CONSTRUCTION
Character facing brick with decorative detailing and timber frame, insulated cavity, under an interlocking tiled roof.
WINDOWS
High specification double glazed uPVC external windows and composite door. Aluminium colour coordinated gutters and fall pipes.
KITCHEN
Fully fitted bespoke kitchen from an exclusive range of kitchen furniture with integrated appliances to agreed budget and design.
BATHROOMS
Quality white bathroom suites with fitted vanity furniture and porcelain tiling.
FLOORING
All floor coverings included to choice with agreed budget.
BEDROOMS
An exclusive range of fitted bedroom can be provided at the purchasers expense.
ELECTRICAL
Pre-wiring for smart TV, SKY HD. USB charging points to some power sockets. TV aerial, telephone points and HDMI.
CENTRAL HEATING
An air source heat pump providing underfloor heating. Energy efficient zoned heating giving extensive control.
DECORATION
Walls and ceilings will be emulsioned and woodwork finished in neutral colours.
EXTERNAL
An outside tap and external power point will be provided. External lighting to front and rear of property. Boundary fencing will be high level close bordered. Electric entrance gate and full power and lighting to detached garage block.
SERVICES
Mains electricity, water are connected.
ENVIRONMENTAL
The property will be built using sustainable sourced materials and local labour. They will be built to achieve a very efficient energy rating, which exceeds that of the current building regulations, thus reducing energy bills for the homeowner. Photo Voltaic panels to the South facing roof pitch, air source heat pump and electric car charger are all included within the purchase.
Build Warranty
The properties will benefit from a build warranty (provider TBC)
PLEASE NOTE: D J Prescott Ltd reserve the right to alter the specification subject to availability, subject to the stage of construction. CGI images for illustration purposes only.
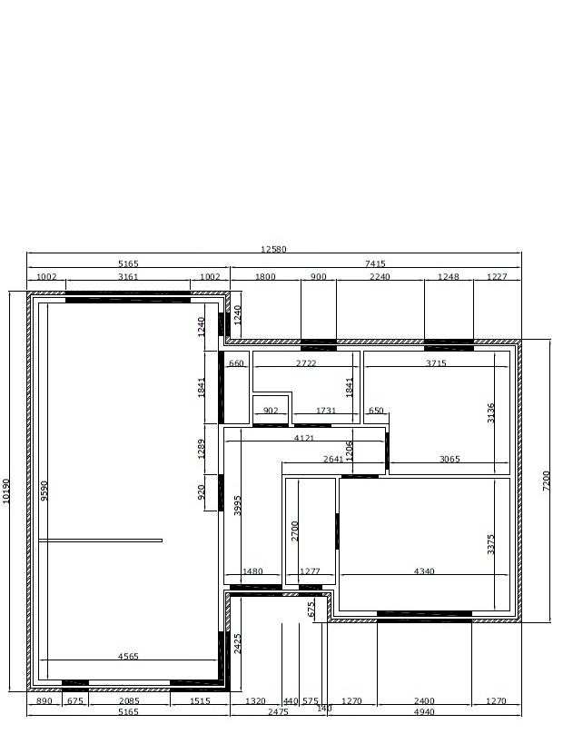
GROUND FLOOR
ENTRANCE HALL
DAYROOM/KITCHEN/DINING AREA (9.59 x 4.56)
INNER HALLWAY
PRINCIPAL BEDROOM (4.34 x 3.37)
ENSUITE SHOWER ROOM (2.70 x 1.27)
BEDROOM 2 (3.71 x3.13)
MAIN BATHROOM (2.72 x 1.84)
EXTERNAL
This executive and individually designed property will be accessed via a private entrance drive from Chantry Way opening through to a generous parking forecourt with CARPORT.
Mature and defined boundary perimeters will offer a sizeable garden space with a contemporary external patio and entertaining space to be provided.
AGENTS NOTE
If a purchaser was to exchange contracts prior to any of the construction stages, then a choice and influence could be exercised with the builder for the likes of Kitchen units, Kitchen arrangement, Bathroom fittings, Bathroom arrangement, as well as decoration and the opportunity for extras such as; fitted bedroom furniture, additional lighting and socket points and any personalisation that an incoming purchaser would seek to include.
The developer reserves the right to amend the specification at their own discretion.
FIXTURES AND FITTINGS
Various quality fixtures and fittings may be available by separate negotiation.
PROPERTY PARTICULARS-DISCLAIMER
CGI IMAGES FOR ILLUSTRATION PURPOSES AND MAY VARY FROM ACUTAL BUILD IN SITU.
PROPERTY MISDESCRIPTIONS ACT 1991
The Agent has not tested any apparatus, equipment, fixture, fittings or services, and so does not verify they are in working order, fit for their purpose, or within ownership of the sellers, therefore the buyer must assume the information given is incorrect. Neither has the Agent checked the legal documentation to verify legal status of the property or the validity of any guarantee. A buyer must assume the information is incorrect, until it has been verified by their own solicitors."
The measurements supplied are for general guidance, and as such must be considered as incorrect. A buyer is advised to re-check the measurements themselves before committing themselves to any expense."
Nothing concerning the type of construction or the condition of the structure is to be implied from the photograph of the property.
The sales particulars may change in the course of time, and any interested party is advised to make final inspection of the property prior to exchange of contracts.
MISREPRESENTATION ACT 1967
These details are prepared as a general guide only, and should not be relied upon as a basis to enter into a legal contract, or to commit expenditure. An interested party should consult their own surveyor, solicitor or other professionals before committing themselves to any expenditure or other legal commitments.
If any interested party wishes to rely upon any information from the agent, then a request should be made and specific written confirmation can be provided. The Agent will not be responsible for any verbal statement made by any member of staff, as only a specific written confirmation should be relied upon. The Agent will not be responsible for any loss other than when specific written confirmation has been requested.
SERVICES
(Not Tested) Mains Water, Gas, Electricity and Drainage are connected.
MORTGAGE CLAUSE
YOUR HOME IS AT RISK IF YOU DO NOT KEEP UP REPAYMENTS ON A MORTGAGE OR OTHER LOAN SECURED ON IT.
Preferred partner- Green & Green Mortgage & Protection — Your Local Mortgage Partner for Hull & East Yorkshire
At Green & Green, we specialise in supporting home-buyers in Hull and the surrounding areas with expert mortgage and personal insurance advice. With our independent status, we access hundreds of lenders to find the right deal for each person’s unique situation.
VIEWING
Strictly by appointment with sole selling agents, Staniford Grays.
Website- Stanifords.com Tel: (01482) - 631133
E-mail: [email protected]
WEBSITES
www.stanifords.com www.rightmove.co.uk www.vebra.co.uk
TENURE
We understand the Tenure of the property to be Freehold with Vacant Possession on Completion.