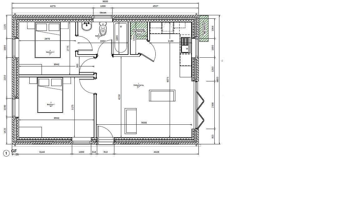
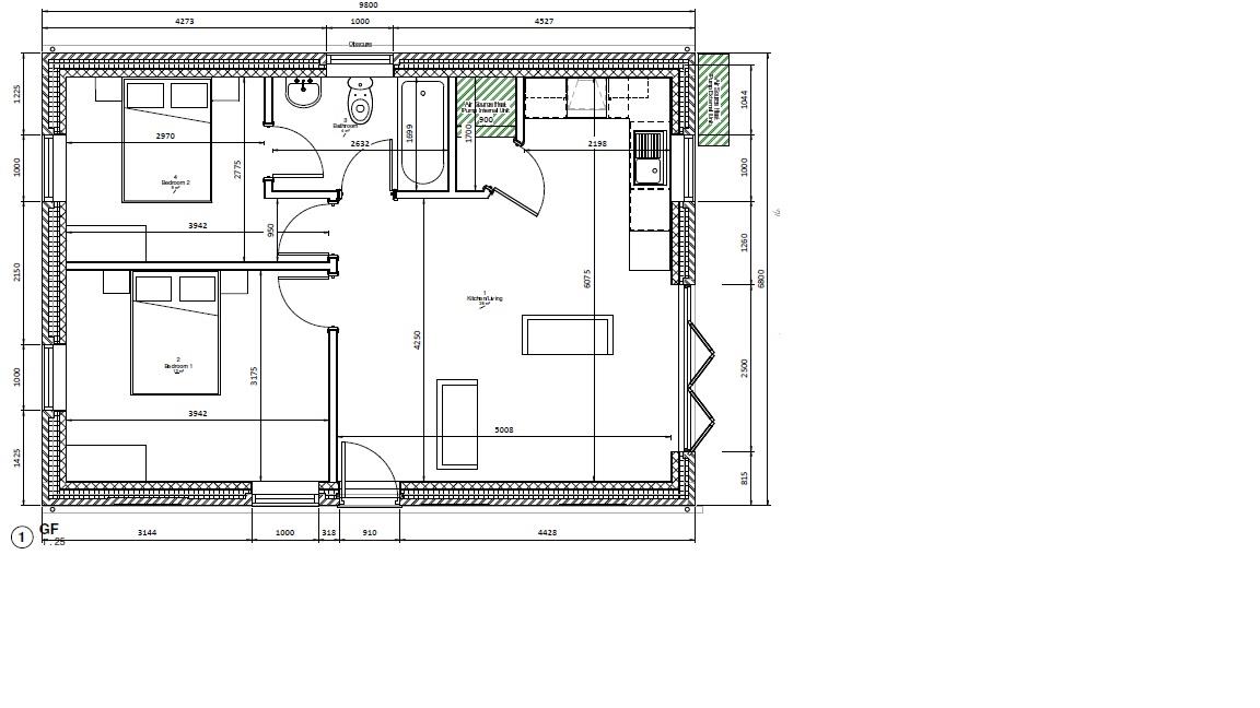
GROUND FLOOR
OPEN PLAN LOUNGE/DAYROOM/KITCHEN (5.00mx 6.07m)
PRINCIPLE BEDROOM (3.94m x 3.17m)
BEDROOM 2 (3.94m x 2.77m)
FAMILY BATHROOM (2.33m x 1.88m)
BATHROOM (2.63m x 1.69m)
Neutrally appointed white sanitary ware, feature splashback tile and flooring. Basin inset to vanity unit, lowflush W.C. Rainfall shower to ensuite and panel bath with shower fittment over to main Bathroom. Heated towel rail.
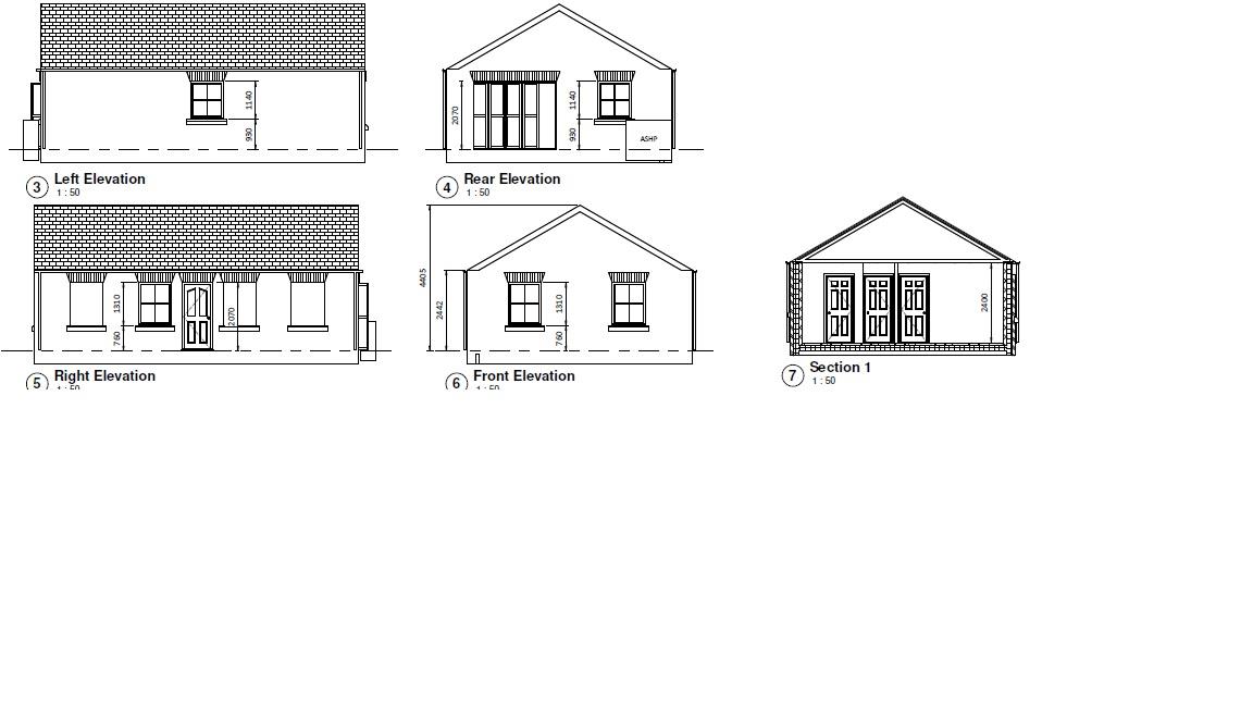
HEATING
Underfloor heating to ground floor level and wet radiators to first floor level. Air source heat pump.
EXTERNAL
Pillared electric gates to main entrance of development. Brick Sett patio detailing and laid to lawn grass (to be laid once a completion date is established) with modern horizontal and boarded fencing. external lighting.
PROPERTY PARTICULARS-DISCLAIMER
PROPERTY MISDESCRIPTIONS ACT 1991
The Agent has not tested any apparatus, equipment, fixture, fittings or services, and so does not verify they are in working order, fit for their purpose, or within ownership of the sellers, therefore the buyer must assume the information given is incorrect. Neither has the Agent checked the legal documentation to verify legal status of the property or the validity of any guarantee. A buyer must assume the information is incorrect, until it has been verified by their own solicitors."
The measurements supplied are for general guidance, and as such must be considered as incorrect. A buyer is advised to re-check the measurements themselves before committing themselves to any expense."
Nothing concerning the type of construction or the condition of the structure is to be implied from the photograph of the property.
The sales particulars may change in the course of time, and any interested party is advised to make final inspection of the property prior to exchange of contracts.
MISREPRESENTATION ACT 1967
These details are prepared as a general guide only, and should not be relied upon as a basis to enter into a legal contract, or to commit expenditure. An interested party should consult their own surveyor, solicitor or other professionals before committing themselves to any expenditure or other legal commitments.
If any interested party wishes to rely upon any information from the agent, then a request should be made and specific written confirmation can be provided. The Agent will not be responsible for any verbal statement made by any member of staff, as only a specific written confirmation should be relied upon. The Agent will not be responsible for any loss other than when specific written confirmation has been requested.
DISCLAIMER
THE DEVELOPER RESERVES THE RIGHT TO AMEND THE SPECIFICATION FROM THE DETAILS DOCUMENTED AT THEIR OWN DISCRETION.
FIXTURES AND FITTINGS
Various quality fixtures and fittings may be available by separate negotiation.
WEBSITES
www.stanifords.com www.rightmove.co.uk www.vebra.co.uk
TENURE
We understand the Tenure of the property to be Freehold with Vacant Possession on Completion.
VIEWING
Strictly by appointment with sole selling agents, Staniford Grays.
Website- Stanifords.com Tel: (01482) - 631133
E-mail: [email protected]
MORTGAGE CLAUSE
YOUR HOME IS AT RISK IF YOU DO NOT KEEP UP REPAYMENTS ON A MORTGAGE OR OTHER LOAN SECURED ON IT.
Preferred partner- Green & Green Mortgage & Protection — Your Local Mortgage Partner for Hull & East Yorkshire
At Green & Green, we specialise in supporting home-buyers in Hull and the surrounding areas with expert mortgage and personal insurance advice. With our independent status, we access hundreds of lenders to find the right deal for each person’s unique situation.