DEVELOPMENT LAND WITH FULL PLANNING PERMISSION
OUTLINE PROPERTY DETAILS
•Planning permission granted
•Viewing as per guidelines below
•2000 Square Feet of living space
•0.16 acre plot size (approx.)
Gated and dedicated access.
EXTENT OF THE SITE
The site is located off Northgate, Cottingham , North of the dwelling 310 Northgate forming part of the previously extended garden.
Access is granted via the private drive off Northgate with dedicated access via a pillared wall with entrance gate. Lighting exists with walled driveway extending to the site.
The site is uniformed in shape forming a level site. The site is predominantly grassed with herbaceous planting to the West, East and North boundary and abutted by garden land to the South and the existing dwelling of 310 Northgate.
DESIGN
The architects have embraced a philosophy of striking external design with a number of contemporary flourishes. The layout remains predominantly open plan with excellent levels of natural daylight with the benefit of generous reception rooms and bedroom sizes.
EXCHANGE PROCEDURE- TERMS OF BUSINESS
The successful applicant will be required to exchange within 28 days of confirmation of instructing solicitors with legal completion to take place no later than 60 days from intial instruction.
Further details of the existing planning permission and conditions please contact East Riding of Yorkshire Council , County Hall, Beverley, East Yorkshire, HU17 9BA T: 01482 393939 http://www2.eastriding.gov.uk/environment/planning-and-building-control/planning-disclaimer/
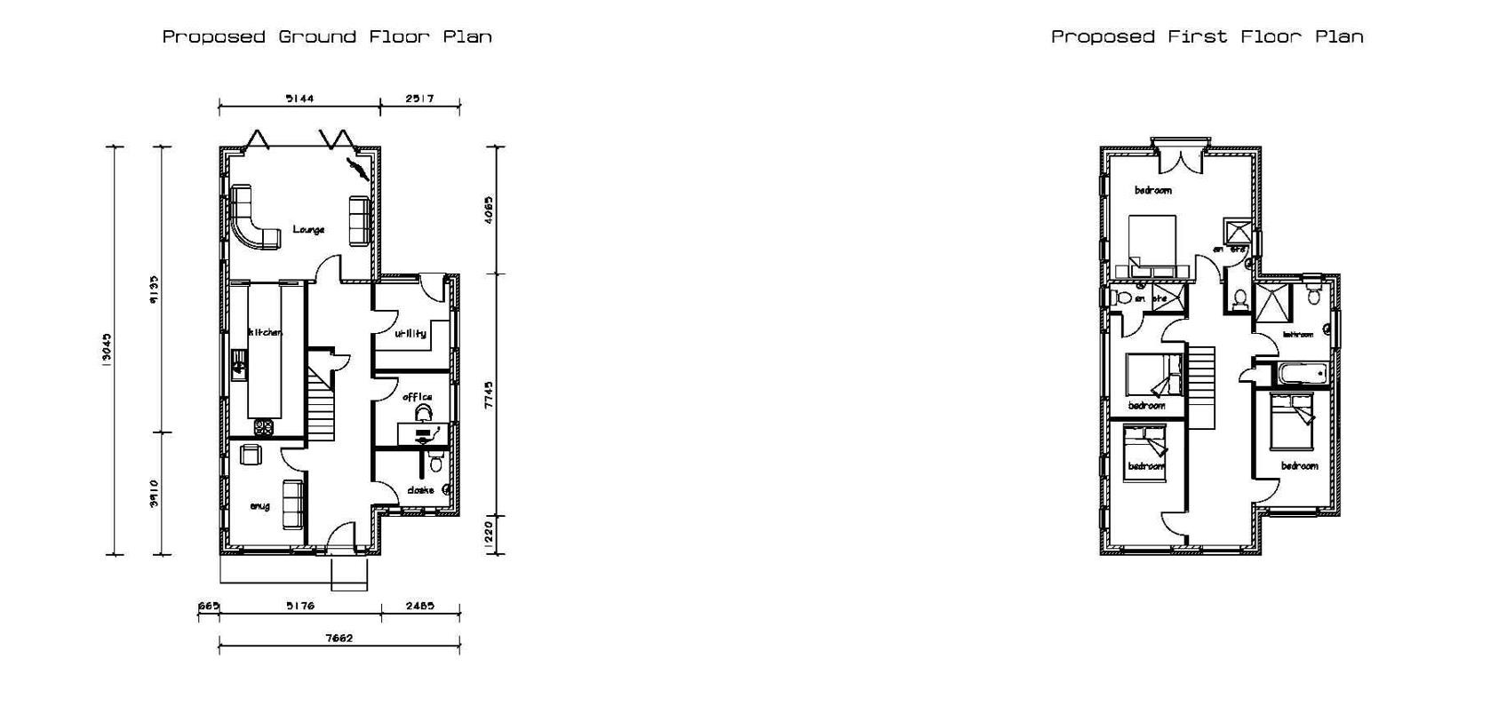
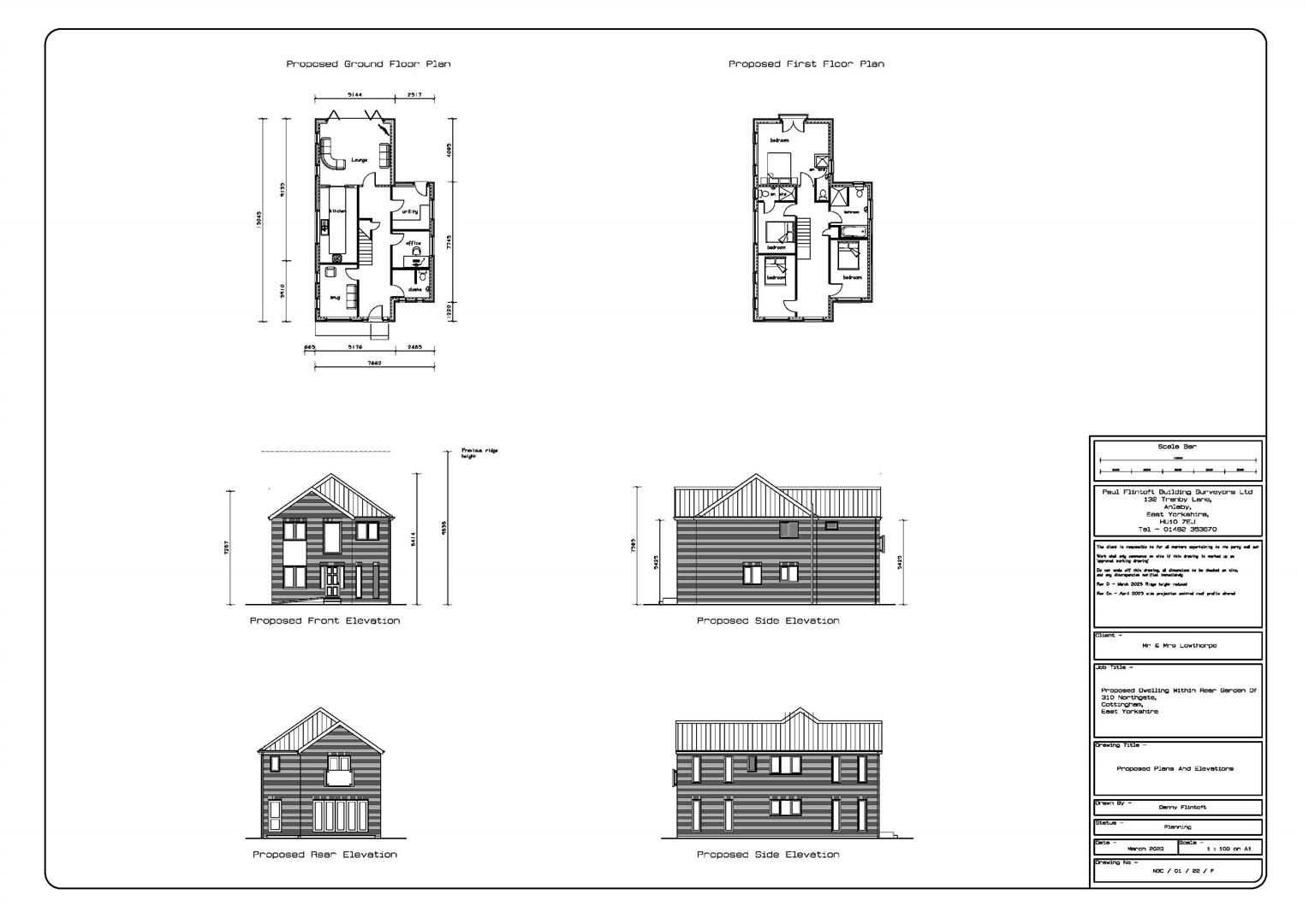
PROPOSED LAYOUT
GROUND FLOOR
ENTRANCE HALLWAY
RECEPTION LOUNGE
DAYROOM/KITCHEN
SNUG
UTILITY ROOM
CLOAKROOM W.C.
BEDROOM 1
SHOWER ROOM
BEDROOM 2
SHOWER ROOM
BEDROOM 3
BEDROOM 4
HOUSE BATHROOM
EXTERNAL
The proposed dwelling is to be accessed via a private and gated entrance drive. with potential for generous parking. Private and established rear gardens to 3 sides. all within a central Cottingham setting.
VIEWING
At any reasonable time by prior arrangment with the sole selling agent Staniford Grays.
The site is in proximity to a number of neighbouring homes so please be respectful of this.
Any interested parties should be aware that the neighbouring homes are occupied and we would ask you not to proceed without a formal appointment.
For any further information please contact:
• Benjamin Wright - Director
• E: [email protected]
T: 01482 631133
WEBSITES
www.stanifords.com www.rightmove.co.uk www.vebra.co.uk www.onthemarket.com
AGENTS NOTE
THE DEVELOPMENT OPPORTUNITY IS RESTRICTED TO A SINGLE DETACHED DWELLING.
Full planning permission has been granted for a four bedroom detached dwelling to the rear of 310 Northgate, Cottingham. Access is provided via a dedicated vehicular driveway with walled and fence detailing opening through to the plot in its entirety, measuring 0.18 of an acre.
The site area itself remains uniform in shape and size with level topography. Full planning permission details can be found on the East Riding Public Access website, Reference 22/03940/PLF.
For full plans and details please contact the sole selling agent Staniford Grays.
PROPERTY PARTICULARS-DISCLAIMER
PROPERTY MISDESCRIPTIONS ACT 1991
The Agent has not tested any apparatus, equipment, fixture, fittings or services, and so does not verify they are in working order, fit for their purpose, or within ownership of the sellers, therefore the buyer must assume the information given is incorrect. Neither has the Agent checked the legal documentation to verify legal status of the property or the validity of any guarantee. A buyer must assume the information is incorrect, until it has been verified by their own solicitors."
The measurements supplied are for general guidance, and as such must be considered as incorrect. A buyer is advised to re-check the measurements themselves before committing themselves to any expense."
Nothing concerning the type of construction or the condition of the structure is to be implied from the photograph of the property.
The sales particulars may change in the course of time, and any interested party is advised to make final inspection of the property prior to exchange of contracts.
MISREPRESENTATION ACT 1967
These details are prepared as a general guide only, and should not be relied upon as a basis to enter into a legal contract, or to commit expenditure. An interested party should consult their own surveyor, solicitor or other professionals before committing themselves to any expenditure or other legal commitments.
If any interested party wishes to rely upon any information from the agent, then a request should be made and specific written confirmation can be provided. The Agent will not be responsible for any verbal statement made by any member of staff, as only a specific written confirmation should be relied upon. The Agent will not be responsible for any loss other than when specific written confirmation has been requested.
TENURE
We understand the Tenure of the property to be Freehold with Vacant Possession on Completion.