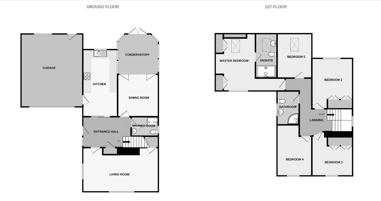
Set within the popular Molescroft area of Beverley, this impressive five bedroom family home offers the generous living spaces throughout and offers the perfect balance of comfort and practicality for the modern family.
The ground floor offers an impressive six metre (20ft) long lounge coupled with a similar length kitchen which also has pedestrian door access to the double garage. A useful shower room with WC is positioned off the entrance hall as is a formal dining room complete with serving hatch from the kitchen. A conservatory adjoins from the dining room via consertina doors and offers views of the rear garden and access via French doors.
Upstairs there are five bedrooms and a family bathroom. Four of the bedrooms are double sized with the principal bedroom benefitting form a an ensuite shower room. The smaller of the bedrooms is currently set up as a study with fitted furniture but would make a nicely proportioned bedroom if required. Whether you are looking for more space for a growing family, guests or home working, this layout provides flexibility to suit a variety of needs.
Externally, the spacious rear lawned garden has a flagged patio area and a path to it from the side of the house.
Located in Molescroft, one of Beverley’s most sought after residential areas, the property benefits from excellent local schooling, convenient amenities and easy access to Beverley town centre, making it an ideal choice for families.
This substantial family home is in a prime position, get in touch and book your viewing today!
ACCOMMODATION COMPRISES
ENTRANCE HALL (3.72m x 2.38m)
uPVC entrance door with privacy glass panels, vinyl floor, pendant light fitting and a storage cupboard.
LOUNGE (6m x 4m)
Wooden door with chrome handles, carpeted floor, front aspect uPVC double glazed window, side aspect uPVC double glazed window, central ceiling antique brass light fitting with matching wall lights, understairs cupboard, fire place with tiled back and hearth, gas fire with wooden mantle piece and surround.
KITCHEN (5.44m x 2.66m)
Wood door with brass handles, vinyl floor, ceiling spotlights, rear and side aspect uPVC double glazed windows, a range of wall and base units with splash back tiling. Integrated four ring gas hob and electric oven with one and a half bowl drainer sink and mixer tap. Plumbing for a dishwasher and washing machine, space for a dryer and under counter fridge.
SHOWER ROOM (2.23m x 1.56m)
Wooden door with brass handles, vinyl floor, side aspect uPVC double glazed window, splash back tiles, low flush WC, pedestal wash hand basin with mixer tap and a shower cubicle with electric shower.
DINING ROOM (3.37m x 3.29m)
Wooden door with brass handles, laminate floor, brass pendant light fitting, wood and glass concertina doors to the conservatory.
CONSERVATORY (3.20m x 2.68m)
Of uPVC, glass and brick construction, uPVC French doors to the rear garden, laminate floor and a central ceiling light with fan.
STAIRCASE AND LANDING (4.46m x 4.15m (longest and widest))
Carpeted floor, pendant light fitting, side aspect uPVC double glazed window, pine wooden banister with spindles.
BEDROOM ONE (4.21m x 3.21m)
Wooden door with chrome handles, carpeted floor, pendant light fitting, rear aspect uPVC double glazed window and fitted wardrobes.
BEDROOM TWO/STUDY (3.72m 2.79m)
Wooden door with brass handles, carpeted floor, ceiling spotlights, rear aspect skylight window, fitted desk and office furniture.
PRINCIPAL BEDROOM (5.96m x 5.53m)
Wooden door with brass handles, carpeted floor, front aspect uPVC double glazed window, central ceiling brass light fitting with matching wall lights, rear aspect skylight window, fitted wardrobes and furniture.
ENSUITE SHOWER ROOM (3.75m x 1.52m)
Wood door with brass handles, vinyl floor, central ceiling light, rear aspect skylight, vanity unit with wash hand basin and low flush WC. Shower enclosure with mixer shower, splash back tiles and an extractor fan.
FAMILY BATHROOM (2.74m x 1.78m)
Wooden door with brass handles, ceiling spotlights, uPVC side aspect privacy window, vinyl floor, shower enclosure with mixer shower, chrome towel radiator, vanity unit with wash hand basin mixer tap and WC.
BEDROOM THREE (4m x 2.79m)
Wooden door with brass handles, carpeted floor, pendant light fitting and a front aspect uPVC double glazed window.
BEDROOM FOUR (4.11m x 3.17m)
Wooden door with brass handles, carpeted floor, ceiling spotlights, fitted wardrobes and a front aspect uPVC double glazed window.
GARAGE (5.74m x 4.98m)
Electric roller door, power, light, rear aspect uPVC double glazed window, two pedestrian doors to the kitchen and garden.
EXTERIOR
To the front a block paved driveway with lawn, side path to the rear garden with fence and hedge surround. To the rear a flagged patio area with path and lawned garden with stone raised perimeter beds and fence surround.
COUNCIL TAX:
We understand the current Council Tax Band to be E
SERVICES :
Mains water, gas, electricity and drainage are connected.
TENURE :
We understand the Tenure of the property to be Freehold.
MORTGAGE CLAUSE :
Staniford Grays provide independent financial advice through Tony Hammond of Hammond Financial. Further details and referrals immediately available through the Beverley Office Tel: (01482) 866304 and [email protected].
YOUR HOME IS AT RISK IF YOU DO NOT KEEP UP REPAYMENTS ON A MORTGAGE OR OTHER LOAN SECURED ON IT.
PROPERTY PARTICULARS DISCLAIMER :
PROPERTY MISDESCRIPTIONS ACT 1991
The Agent has not tested any apparatus, equipment, fixture, fittings or services, and so does not verify they are in working order, fit for their purpose, or within ownership of the sellers, therefore the buyer must assume the information given is incorrect. Neither has the Agent checked the legal documentation to verify legal status of the property or the validity of any guarantee. A buyer must assume the information is incorrect, until it has been verified by their own solicitors."
The measurements supplied are for general guidance, and as such must be considered as incorrect. A buyer is advised to re-check the measurements themselves before committing themselves to any expense."
Nothing concerning the type of construction or the condition of the structure is to be implied from the photograph of the property.
The sales particulars may change in the course of time, and any interested party is advised to make final inspection of the property prior to exchange of contracts.
MISREPRESENTATION ACT 1967
These details are prepared as a general guide only, and should not be relied upon as a basis to enter into a legal contract, or to commit expenditure. An interested party should consult their own surveyor, solicitor or other professionals before committing themselves to any expenditure or other legal commitments.
If any interested party wishes to rely upon any information from the agent, then a request should be made and specific written confirmation can be provided. The Agent will not be responsible for any verbal statement made by any member of staff, as only a specific written confirmation should be relied upon. The Agent will not be responsible for any loss other than when specific written confirmation has been requested.