Set within the ever-popular Manor Park area of Beverley, this attractive detached Peter Ward home is perfectly suited to modern family life, offering space, comfort and a wonderful community setting.
With four generously sized bedrooms, there is room for growing families, visiting grandparents or a dedicated home office. The two spacious reception rooms give families the flexibility they need — whether it’s a cosy movie night in the lounge or a lively space for children to play while adults entertain.
Two contemporary bathrooms help make busy mornings run smoothly, while the well-designed layout strikes the ideal balance between shared family time and personal space.
Outside, the large drive offers parking for up to four vehicles adds everyday practicality, while the location truly sets this home apart. Manor Park is loved by families for its friendly, neighbourly feel and easy access to well-regarded schools, local shops and green spaces where children can play and families can enjoy the outdoors together.
More than just a house, this is a home where memories are made. A fantastic opportunity for families looking to settle in a safe, welcoming and well-connected part of Beverley.
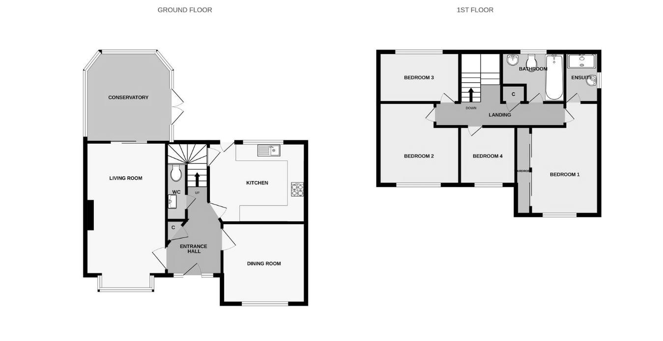
ACCOMMODATION COMPRISES
ENTRANCE HALL (3.34m x 2.38m)
Wooden entrance door with glass panels, pendant light fitting, carpeted floor and a storage cupboard.
LOUNGE (5.57m x 3.36m)
Wooden door with brass handles, carpeted floor, two pendent light fittings, front aspect uPVC double glazed bay window, fire place with stone surround, mantle piece and hearth, with Contura wood burning stove.
CONSERVATORY (3.57m x 3.74m)
With brick, uPVC and glass construction, a sliding entrance door, laminate floor and French doors to the rear garden.
CLOAK ROOM/WC (2.37m x 0.78m)
Wood door with brass handles, vinyl floor, pendant light fitting, wash hand basin with mixer tap and vanity unit, extractor fan and low flush WC.
DINING ROOM (3.49m x 3.34m)
Wood door with brass handles, carpeted floor, pendant light fitting and a front aspect uPVC double glazed window.
KITCHEN (4.09m x 3.36m)
Wood door with brass handles, hardwood rear double glazed door with privacy glass panels, carpeted floor, a range of wall and base units, rear aspect uPVC double glazed window, integrated appliances include a NEFF four ring gas hob with extractor fan above and a De Dietrich electric oven. A ceramic one and a half bowl drainer sink with mixer tap, plumbing for a washing machine and a storage cupboard.
HALF LANDING AND STAIRCASE (1.81m x 0.92)
With a rear aspect uPVC double glazed window, carpeted floor with banister and spindles.
LANDING AND STAIRCASE (4.73m x 0.90m)
With carpeted floor, wooden banister and spindles, loft hatch, and airing cupboard.
BEDROOM THREE (3.36m x 2.11m)
Wooden door with brass handles, carpeted floor, pendant light fitting, uPVC rear aspect double glazed window.
BEDROOM TWO (3.41m x 3.38m)
Wooden door with brass handles, pendant light fitting, stripped wood floor boards, front aspect uPVC double glazed window.
BEDROOM FOUR (2.40m x 2.40m)
Wooden door with brass handles, exposed floor boards and a front aspect uPVC double glazed window.
BATHROOM (2.559m x 2.04m)
Wooden door with brass handles, vinyl floor, ceiling spotlights, rear aspect privacy glass window, bath with shower screen, mixer tap and electric shower over, low flush WC, wash hand basin with mixer tap, chrome towel radiator, full splash back tiling and extractor fan.
PRINCIPAL BEDROOM (4.65m x 3.45m)
Wooden door with brass handles, front aspect uPVC double glazed window, carpeted floor, fitted wardrobes and a pendant light fitting.
ENSUITE SHOWER ROOM (2.09m x 1.36m)
Wooden door with brass handles, side aspect uPVC double glazed privacy window, pedestal wash hand basin with mixer tap, extractor fan, shower enclosure with mixer shower, full splash back tiling and a chrome towel radiator.
EXTERIOR
To the front lawn with a flagged path to the front door. A block paved and concrete driveway. To the rear a flagged patio area with lawn, fence and wall surround.
DOUBLE GARAGE (5.24m x 5.29m)
With manual up and over door, power, light and pedestrian door.
COUNCIL TAX:
We understand the current Council Tax Band to be F
SERVICES :
Mains water, gas, electricity and drainage are connected.
TENURE :
We understand the Tenure of the property to be Freehold.
MORTGAGE CLAUSE :
Staniford Grays provide independent financial advice through Tony Hammond of Hammond Financial. Further details and referrals immediately available through the Beverley Office Tel: (01482) 866304 and [email protected].
YOUR HOME IS AT RISK IF YOU DO NOT KEEP UP REPAYMENTS ON A MORTGAGE OR OTHER LOAN SECURED ON IT.
PROPERTY PARTICULARS DISCLAIMER :
PROPERTY MISDESCRIPTIONS ACT 1991
The Agent has not tested any apparatus, equipment, fixture, fittings or services, and so does not verify they are in working order, fit for their purpose, or within ownership of the sellers, therefore the buyer must assume the information given is incorrect. Neither has the Agent checked the legal documentation to verify legal status of the property or the validity of any guarantee. A buyer must assume the information is incorrect, until it has been verified by their own solicitors."
The measurements supplied are for general guidance, and as such must be considered as incorrect. A buyer is advised to re-check the measurements themselves before committing themselves to any expense."
Nothing concerning the type of construction or the condition of the structure is to be implied from the photograph of the property.
The sales particulars may change in the course of time, and any interested party is advised to make final inspection of the property prior to exchange of contracts.
MISREPRESENTATION ACT 1967
These details are prepared as a general guide only, and should not be relied upon as a basis to enter into a legal contract, or to commit expenditure. An interested party should consult their own surveyor, solicitor or other professionals before committing themselves to any expenditure or other legal commitments.
If any interested party wishes to rely upon any information from the agent, then a request should be made and specific written confirmation can be provided. The Agent will not be responsible for any verbal statement made by any member of staff, as only a specific written confirmation should be relied upon. The Agent will not be responsible for any loss other than when specific written confirmation has been requested.