Welcome to this distinctive and generously proportioned four bedroom detached home, perfectly positioned in the ever-popular village of Leven, an ideal location for family life. Leven is just six miles from the shores of Hornsea and only eight miles from the thriving market town of Beverley, this property offers the best of countryside and coast.
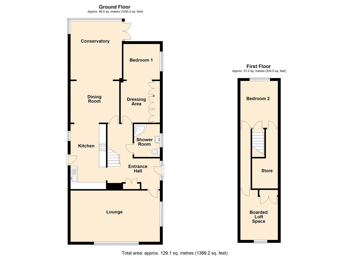
Set on a large, private plot, this individually built home delivers impressive space inside and out. The welcoming entrance hall, bathed in natural light from Velux skylights, immediately sets the tone for the space and flow that defines this home. A substantial lounge stretches the depth of the property and features a cosy log burning stove, ideal for cosy nights and family evenings in.
Upstairs, the galleried landing leads to four true double bedrooms. The principal suite enjoys its own ensuite shower room, while two bedrooms come with built-in wardrobes.
Outside, the home continues to impress with a generous rear garden, two patio areas, and mature borders for privacy. To the front, twin gravel driveways and a 22ft garage provide ample parking for family and guests alike.
ACCOMMODATION COMPRISES
ENTRANCE PORCH (2m x 1.41m)
Wooden front door with a glass panel, laminate wood floor, wall light fitting and a side aspect wood double glazed window.
ENTRANCE HALL (3.39m x 2.41m)
Wood door with brass handles, laminate wood floor, wall light fitting, two VELUX windows and a built in under floor heating manifold/ controls cupboard.
STUDY (5m x 1.81m)
Wood door with brass handles, vinyl floor, pendant light fitting, front aspect wood double glazed sash window.
LOUNGE (6.11m x 3.38m)
Two wood doors with brass handles, carpeted floor, two chrome light fittings, front aspect wood double glazed sash window, rear aspect wood French doors to garden, fireplace with tiled hearth with cast iron log burner effect gas fire and wood surround.
CLOAK/WC (1.47m x 0.98m)
Wood door with brass handles, vinyl floor, central ceiling light, wash hand basin, low flush WC and extractor fan.
KITCHEN (7.73m x 3.37m)
Wood door with brass handles, tiled floor, two pendant light fittings and ceiling spotlights. Rear aspect uPVC double glazed window, wooden French doors to patio, integrated dishwasher, Belling duel fuel cooker with five ring gas hob and matching extractor over, granite worktops, drainer sink with mixer taps and a range of wall and base units.
UTILITY ROOM (2.78m x 1.47m)
Wood door with brass handles, laminate floor, central ceiling light, plumbing for washing machine and space for a dryer. Wall units and worktop with walk in larder cupboard (1.47m x 1.10m).
CONSERVATORY (3.73m x 2.99m)
Of brick, uPVC and glass construction, wood door with brass handles, uPVC French doors to the garden, tiled floor and chrome fan light.
STAIRCASE AND LANDING (4.84m x 0.96m)
Galleried landing, carpeted floor, wooden banister with spindles.
BEDROOM ONE (5.12m x 3.58m)
Wood door with brass handles, laminate floor, pendant light fitting, front aspect wooden double glazed sash window with fitted wardrobes and furniture.
BEDROOM TWO (3.59m x 3.33m)
Wood door with brass handles, carpeted floor, pendant light fitting, rear aspect uPVC double glaze window with fitted wardrobes and drawers.
BEDROOM THREE (3.80m x 2.27m)
Wood door with brass handles, carpeted floor, pendant light fitting and a rear aspect uPVC double glazed window.
PRINCIPAL BEDROOM (3.57m x 3.35m)
Wood door with brass handles, carpeted floor, pendant light fitting and a rear aspect uPVC double glazed window.
ENSUITE WET ROOM (2.31m x 2.14m)
Wood door with brass handles, central ceiling light, tiled floor, side aspect wooden double glazed privacy glass window, chrome towel radiator, low flush WC, wash hand basin with vanity unit and mixer tap, extract fan, boiler cupboard and shower enclosure closure with mixer shower.
BATHROOM (3.98m x 3.38)
Wood door with brass handles, Karndean flooring, chrome spotlight lights, front aspect wooden double glazed sash window, two chrome towel radiators and a corner shower cubicle with mixer shower. Vanity unit with wash hand basin, free standing bath with mixer taps, extractor fan, vanity unit with low flush WC and tall storage unit.
GARAGE (7m x 3.69m)
With up and over door and pedestrian door.
EXTERIOR
To the front two gravel driveways each with parking for multiple vehicles and a central block paved path to the front door. An electric car charging point is also positioned next to the garage with a wooden fence and gate to the rear garden from the right hand side driveway. To the rear a flagged patio and lawn with gravel and mature borders with fence surround.
COUNCIL TAX:
We understand the current Council Tax Band to be F
SERVICES :
Mains water, gas, electricity and drainage are connected.
TENURE :
We understand the Tenure of the property to be Freehold.
MORTGAGE CLAUSE :
Staniford Grays provide independent financial advice through Tony Hammond of Hammond Financial. Further details and referrals immediately available through the Beverley Office Tel: (01482) 866304 and [email protected].
YOUR HOME IS AT RISK IF YOU DO NOT KEEP UP REPAYMENTS ON A MORTGAGE OR OTHER LOAN SECURED ON IT.
PROPERTY PARTICULARS DISCLAIMER :
PROPERTY MISDESCRIPTIONS ACT 1991
The Agent has not tested any apparatus, equipment, fixture, fittings or services, and so does not verify they are in working order, fit for their purpose, or within ownership of the sellers, therefore the buyer must assume the information given is incorrect. Neither has the Agent checked the legal documentation to verify legal status of the property or the validity of any guarantee. A buyer must assume the information is incorrect, until it has been verified by their own solicitors."
The measurements supplied are for general guidance, and as such must be considered as incorrect. A buyer is advised to re-check the measurements themselves before committing themselves to any expense."
Nothing concerning the type of construction or the condition of the structure is to be implied from the photograph of the property.
The sales particulars may change in the course of time, and any interested party is advised to make final inspection of the property prior to exchange of contracts.
MISREPRESENTATION ACT 1967
These details are prepared as a general guide only, and should not be relied upon as a basis to enter into a legal contract, or to commit expenditure. An interested party should consult their own surveyor, solicitor or other professionals before committing themselves to any expenditure or other legal commitments.
If any interested party wishes to rely upon any information from the agent, then a request should be made and specific written confirmation can be provided. The Agent will not be responsible for any verbal statement made by any member of staff, as only a specific written confirmation should be relied upon. The Agent will not be responsible for any loss other than when specific written confirmation has been requested.