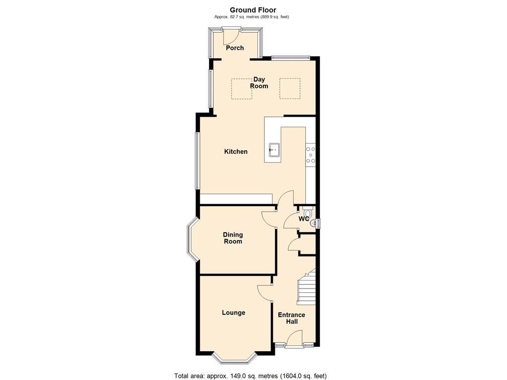
GROUND FLOOR
ENTRANCE HALLWAY (6.73 x 2.11)
A welcoming entrance to this delightful family property, offering a spacious reception hallway with balustraded staircase leading to first floor level, understairs storage cupboard, laminate to floor covering, Hive heating control point, access to ground floor reception spaces, uPVC double glazed entrance door with windows to side.
CLOAKROOM / W.C
With white sanitaryware with low flush w.c, inset basin, tiling to splashbacks with feature tile detailing, uPVC privacy window to side.
RECEPTION LOUNGE (4.45m x 3.54m (into bay))
Enjoying a bright outlook with an abundance of natural daylight provided, with room for furniture suite and a central focal point provided via a gas fire with traditional surround.
DINING ROOM (5.10 x 3.34)
With laminate to floor coverings, inset spotlights to ceiling, panelled wall detailing, uPVC double glazed walk-in bay window.
KITCHEN (4.26 x 5.69)
Serving as the heart of this immaculately appointed and well styled home, with high specification hardwood Shaker style kitchen, solid oak work surfaces, traditional detail provided via Belfast style porcelain sink, wraparound breakfast bar, farmhouse oversize extractor canopy, space for oversize range cooker. Generous storage throughout with a range of integrated appliances including dishwasher, washing machine to alternate wall length, contrasting Shaker style cupboards continuing and pull-out pantry, Karndean flooring throughout, inset spotlights to ceiling, space for American style fridge freezer. Open plan to further breakfast area with uPVC double glazed window to side and...
DAY ROOM (4.91 x 2.88)
With full garden outlook, Velux rooflights and additional uPVC double glazed window to side, Karndean flooring continuing, wall light points. Being open through to...
REAR ACCESS (2.68 x 1.47)
With uPVC double glazed door and windows, leading to the patio terrace.
FIRST FLOOR
LANDING (3.24 x 2.87)
Providing access to four generously sized bedrooms and inner hallway, loft access point and storage cupboard also.
BEDROOM ONE (4.32 x 3.60)
With uPVC double glazed window to front elevation, with fitted wardrobes to wall length.
EN SUITE SHOWER ROOM (2.96 x 1.13)
With uPVC privacy window to side, self-contained shower cubicle with wall mounted showerhead, console and rainfall overhead shower also, inset spotlights to ceiling, tiling to splashbacks, heated towel rail.
BEDROOM TWO (4.34 x 2.58)
With uPVC double glazed window to the rear elevation, laminate to floorcoverings, inset spotlights to ceiling, contemporary style radiator.
BEDROOM THREE (4.51 x 2.82)
With inset spotlights to ceiling, uPVC double glazed window to rear to elevated garden outlook, laminate to floorcoverings, wardrobes and overhead locker storage also.
BEDROOM FOUR (2.67 x 2.09)
Has potential to be used a fourth bedroom, nursery or study, with fitted wardrobes and uPVC double glazed window to front elevation.
HOUSE BATHROOM (2.82 x 2.46)
Immaculately appointed throughout in a traditional style with freestanding roll top bath with chrome fitted tap points, inset basin to vanity unit, concealed cistern low flush w.c, heated towel rail, feature wall tiled area with contrasting tiling to flooring and additional panelled detailing to wall coverings, uPVC privacy window to side, inset spotlights to ceiling and traditional style radiator. Given the standard of sanitaryware and attention to detail throughout it really does need to be seen to be fully appreciated.
SEPARATE SHOWER ROOM (2.11 x 1.71)
With corner shower cubicle, concealed cistern low flush w.c, inset basin to vanity unit, contrasting tiling to wall and floor, radiator and inset spotlights to ceiling.
OUTSIDE
The dwelling benefits from a prominent roadside position on Northgate being centrally located in Cottingham, offering an ideal family home with dedicated parking and driveway suitable for multiple vehicles, with pillared wall to the front boundary perimeter.
Secure gated access leads down the side of the property to expansive laid to lawn grass section with terrace extending from the immediate building footprint and pathway down to partially walled garden with boarded fencing also, raised borders, additional patio terrace area with outdoor kitchen and pergola.
Detached outbuildings boast a wealth of potential with a dedicated bar/gym room (3.83m x 3.62m) to to the ground floor, with full power and lighting, tiled flooring and stable door access and window to side.
STORAGE ROOM (4.88m x 3.86m) with full power and lighting, used currently as storage, to the first floor level a dedicated hayloft remains boarded, with further potential also.
AGENTS NOTE
VACANT LAND EXISTS TO THE REAR OF THE PROPERTY WITH PLANNING PERMISSION FOR A DETACHED DWELLING AND IS AVAILBLE TO PURCHASE AS A SEPERATE OPPORTUNITY THROUGH STANIFORD GRAYS. FOR FURTHER DETAILS PLEASE CONTACT US.
FIXTURES AND FITTINGS
Various quality fixtures and fittings may be available by separate negotiation.
SERVICES
(Not Tested) Mains Water, Gas, Electricity and Drainage are connected. We understand the current E.R.Y.C council tax band is 'E'.
TENURE
We understand the Tenure of the property to be Freehold with Vacant Possession on Completion.
VIEWING
Strictly by appointment with sole selling agents, Staniford Grays.
Website- Stanifords.com Tel: (01482) - 631133
E-mail: [email protected]
WEBSITES
www.stanifords.com www.rightmove.co.uk www.vebra.co.uk
MORTGAGE CLAUSE
YOUR HOME IS AT RISK IF YOU DO NOT KEEP UP REPAYMENTS ON A MORTGAGE OR OTHER LOAN SECURED ON IT.
Preferred partner- Green & Green Mortgage & Protection — Your Local Mortgage Partner for Hull & East Yorkshire
At Green & Green, we specialise in supporting home-buyers in Hull and the surrounding areas with expert mortgage and personal insurance advice. With our independent status, we access hundreds of lenders to find the right deal for each person’s unique situation.
PROPERTY PARTICULARS-DISCLAIMER
PROPERTY MISDESCRIPTIONS ACT 1991
The Agent has not tested any apparatus, equipment, fixture, fittings or services, and so does not verify they are in working order, fit for their purpose, or within ownership of the sellers, therefore the buyer must assume the information given is incorrect. Neither has the Agent checked the legal documentation to verify legal status of the property or the validity of any guarantee. A buyer must assume the information is incorrect, until it has been verified by their own solicitors."
The measurements supplied are for general guidance, and as such must be considered as incorrect. A buyer is advised to re-check the measurements themselves before committing themselves to any expense."
Nothing concerning the type of construction or the condition of the structure is to be implied from the photograph of the property.
The sales particulars may change in the course of time, and any interested party is advised to make final inspection of the property prior to exchange of contracts.
MISREPRESENTATION ACT 1967
These details are prepared as a general guide only, and should not be relied upon as a basis to enter into a legal contract, or to commit expenditure. An interested party should consult their own surveyor, solicitor or other professionals before committing themselves to any expenditure or other legal commitments.
If any interested party wishes to rely upon any information from the agent, then a request should be made and specific written confirmation can be provided. The Agent will not be responsible for any verbal statement made by any member of staff, as only a specific written confirmation should be relied upon. The Agent will not be responsible for any loss other than when specific written confirmation has been requested.
FEES
The agent confirms that vendors and prospective purchasers may be offered estate agency and other allied services for which certain referral fees/commissions may be made available to the agent. Services the agent and/or a connected person may earn referral fees/commissions from Financial Services, Conveyancing and Surveys. For full details please contact the selling agent.