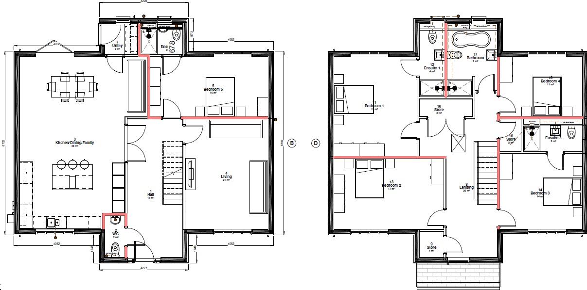
GROUND FLOOR
STORM PORCH
RECEPTION HALLWAY (6.72 x 2.60)
A welcoming entrance to this immaculately presented new build home, with staircase approach leading to first floor level with oak balustrade and staircase, Karndean flooring throughout, with access provided to ground floor reception spaces.
W,C
With concealed cistern low flush w.c, pedestal basin in immaculate white finish, heated towel rail.
OPEN PLAN DAY ROOM / KITCHEN (8.52 x 5.07)
(at longest and widest point)
With uPVC double glazed window to the immediate front outlook, folding doors to the rear patio terrace with Karndean flooring throughout, immaculately appointed with a range of midnight blue wall and base units with contrasting quartz work surfaces over, kitchen island, incorporating oversize 5-ring induction hob with wall mounted extractor canopy, 1&1/2 bowl sink and drainer with feature mixer tap, integrated dishwasher, mid-level twin ovens, inset spotlights to ceiling, separate full height fridge and freezer, being open plan to an informal reception space and boasting excellent levels of natural daylight. Access provided to...
UTILITY ROOM (1.65 x 1.69)
With Karndean flooring, uPVC window, wall and base units with inset sink and drainer, integrated washing machine and door to rear.
RECEPTION LOUNGE (5.26 x 3.93)
With Karndean flooring, uPVC double glazed window, boasting excellent proportions, with full outlook over frontage.
GROUND FLOOR BEDROOM (5.64 x 2.83)
With uPVC double glazed window to rear, a versatile room that has potential to be used as an additional reception space, study, or alternatively large guest bedroom. Leads to...
EN SUITE SHOWER ROOM
With self-contained shower cubicle, neutral tiling to splashbacks, Karndean flooring, low flush w.c and pedestal wash hand basin.
FIRST FLOOR
LANDING (7.83 x 3.70)
With balustraded staircase with oak handrail, providing access to four double bedrooms, with two deep storage cupboards offering generous storage provision.
PRINCIPAL BEDROOM (4.74 x 3.92)
With uPVC double glazed window to the rear outlook, of double bedroom proportions with ample space for freestanding bedroom furniture. Leads to...
EN SUITE SHOWER ROOM (3.45 x 1.25)
With double shower enclosure, pedestal wash hand basin, concealed cistern low flush w.c, neutral tiling to splashbacks, heated towel rail, Karndean flooring, inset spotlights to ceiling.
BEDROOM TWO (3.97 x 3.59)
With uPVC double glazed window to front outlook, of double bedroom proportions with space for freestanding bedroom furniture.
EN SUITE SHOWER ROOM
Concealed cistern low flush w.c, pedestal wash hand basin, self-contained shower cubicle, neutral tiling to splashbacks, heated towel rail, uPVC privacy window.
BEDROOM THREE (5.34 x 3.50)
With uPVC double glazed window to the frontage with full golf course views.
BEDROOM FOUR (3.94 x 2.83)
With uPVC double glazed window to the rear and of double bedroom proportions.
HOUSE BATHROOM (3.29 x 2.40)
Smartly appointed, incorporating white sanitaryware of panelled bath, double width shower cubicle with wall mounted head and console, inset basin to vanity unit, low flush w.c, uPVC privacy window to rear, heated towel rail, inset spotlights to ceiling.
OUTSIDE
Belvedere Parade itself remains conveniently positioned in the South Beach area of Bridlington, being a stones throw from unrivalled beach walks with full beach and sea views to the front of the development.
The self-contained environment boasts a number of executive style detached coastal properties, all of striking external contemporary design with the subject dwellings being the last opportunities to purchase on the development and situated towards the end of a cul-de-sac position.
Both properties benefit from double width driveways with detached garaging (6.12m x 5.89m) with electronically operated doors and with full power and lighting.
Front porches feature providing access to the property, with wall mounted spotlights. A block paved pathway features to the front, with boarded fencing to perimeter boundaries. A secure access gate leads to private rear gardens, in close proximity to the golf course, with patio terrace extending from the building footprint and laid to lawn grass also. External tap and light points.
AGENTS NOTE
The property comes fully completed and ready for immediate occupation, being of timber framed construction with clad exterior and given the generous sizing and high specification comes recommended for viewing via the sole selling agent Staniford Grays.
FIXTURES AND FITTINGS
Various quality fixtures and fittings may be available by separate negotiation.
TENURE
We understand the Tenure of the property to be Freehold with Vacant Possession on Completion.
MORTGAGE CLAUSE
YOUR HOME IS AT RISK IF YOU DO NOT KEEP UP REPAYMENTS ON A MORTGAGE OR OTHER LOAN SECURED ON IT.
Preferred partner- Green & Green Mortgage & Protection — Your Local Mortgage Partner for Hull & East Yorkshire
At Green & Green, we specialise in supporting home-buyers in Hull and the surrounding areas with expert mortgage and personal insurance advice. With our independent status, we access hundreds of lenders to find the right deal for each person’s unique situation.
PROPERTY PARTICULARS-DISCLAIMER
PROPERTY MISDESCRIPTIONS ACT 1991
The Agent has not tested any apparatus, equipment, fixture, fittings or services, and so does not verify they are in working order, fit for their purpose, or within ownership of the sellers, therefore the buyer must assume the information given is incorrect. Neither has the Agent checked the legal documentation to verify legal status of the property or the validity of any guarantee. A buyer must assume the information is incorrect, until it has been verified by their own solicitors."
The measurements supplied are for general guidance, and as such must be considered as incorrect. A buyer is advised to re-check the measurements themselves before committing themselves to any expense."
Nothing concerning the type of construction or the condition of the structure is to be implied from the photograph of the property.
The sales particulars may change in the course of time, and any interested party is advised to make final inspection of the property prior to exchange of contracts.
MISREPRESENTATION ACT 1967
These details are prepared as a general guide only, and should not be relied upon as a basis to enter into a legal contract, or to commit expenditure. An interested party should consult their own surveyor, solicitor or other professionals before committing themselves to any expenditure or other legal commitments.
If any interested party wishes to rely upon any information from the agent, then a request should be made and specific written confirmation can be provided. The Agent will not be responsible for any verbal statement made by any member of staff, as only a specific written confirmation should be relied upon. The Agent will not be responsible for any loss other than when specific written confirmation has been requested.